• Дворцовый комплекс Касри-Ширин

    Дворцовый ансамбль Касри-Ширин, является резиденцией Хосрова II Парвиза (590-628 гг.), а также его любимой жены христианки Ширин.

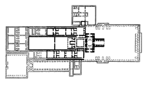
    Дворец в Касри-Ширин. План - www.Arhitekto.ru Крепостная стена - www.Arhitekto.ru

    Справа: Дворец в Касри-Ширин. План.
    Слева:крепостная стена в Касри-Ширин. Разрез.

    Обширный дворцовый сад окружала каменная стена-акведук, обеспечивавшего водой дворец и оросительную систему сада. В восточной стене ограды располагались ворота, от них к дворцу вела парадная аллея, вдоль которой тянулось водное зеркало (550 х 50 м). Двусторонний пандус вел на дворцовую террасу (шириной 98 м и высотой ок. 8 м), основание которой окружала галерея с арками, ведущими в сводчатые комнаты. На восточный фасад дворцового строения (372 х 190) открывался огромный тройной айван с массивными круглыми столбами. За ним по главной оси располагались - главный купольный зал, квадратный перистиль с айваном, портик с 4 столпами и обширный двор, разделенный на две части. К главным залам примыкают группы меньших дворов, возможно, гарема, а также служебных комнат. Стены и своды дворцовых помещений сложены из булыжного камня, круглые колонны - из обожженного кирпича. Во дворце стены и колонны украшены богатым резным орнаментом.

    К югу от дворца располагалась группа построек, окруженная стеной, среди которых выделялось массивное купольное здание, именуемое Чор-Капу, вероятно служившее храмом. Южнее от них размещается цитадель Калаи Хосроу с помещением для гарнизона. Каждая стена квадратной в плане крепости (180 х 180 м) укреплена 6 полукруглыми башнями. Вокруг цитадели был вырыт глубокий ров, через который с юга и запада были переброшены мосты на аркадах (6, том 1, стр. 335-338).

    Дворцовый ансамбль в Касри-Ширин. План - www.Arhitekto.ru

    Дворцовый ансамбль в Касри-Ширин. План:
    1 - ворота; 2 - дворец; 3 - храм; 4 - крепость.

    Читайте также:

    Источники
  •